57 Fore Street, Bodmin, PL31 2JB
Fore Street, Cornwall, PL31 2JB
- 11
Key features
Guide Price: *
£135,000
Fees apply
Buyer's fee:£3,600
Legal fee:£366
All fees include VAT at 20%
Holding Deposit: *£1,400
*Only charged if you are the successful buyer and goes towards the purchase price
Auction Type:
† Traditional
Sold for:
£140,000Bid history
5 bidsCThis is an automatic bid as the bidder has set a maximum bid for this lot
16/08/2023 10:50:01 - £140,000
I
16/08/2023 10:50:01 - £139,000
CThis is an automatic bid as the bidder has set a maximum bid for this lot
16/08/2023 10:45:21 - £137,000
See all 5 bids ▾
FOR SALE BY ONLINE AUCTION - End of Auction: 16th August 2023 at 12 noon. GUIDE PRICE OFFERS IN EXCESS OF £135,000. TO BID, WATCH THIS PROPERTY OR REGISTER YOUR INTEREST VISIT OUR BIDDING PLATFORM BY FOLLOWING THE LINK IN THE PHOTO CAROUSEL. The bidding platform is now open and bids on the property can be made online at any time between now and the end of the auction which is 12 noon on 16th August 2023. All of the legal documentation can also be viewed online. Set in the main shopping street in Bodmin is this four-storey building with parking for approximately three cars to the rear.
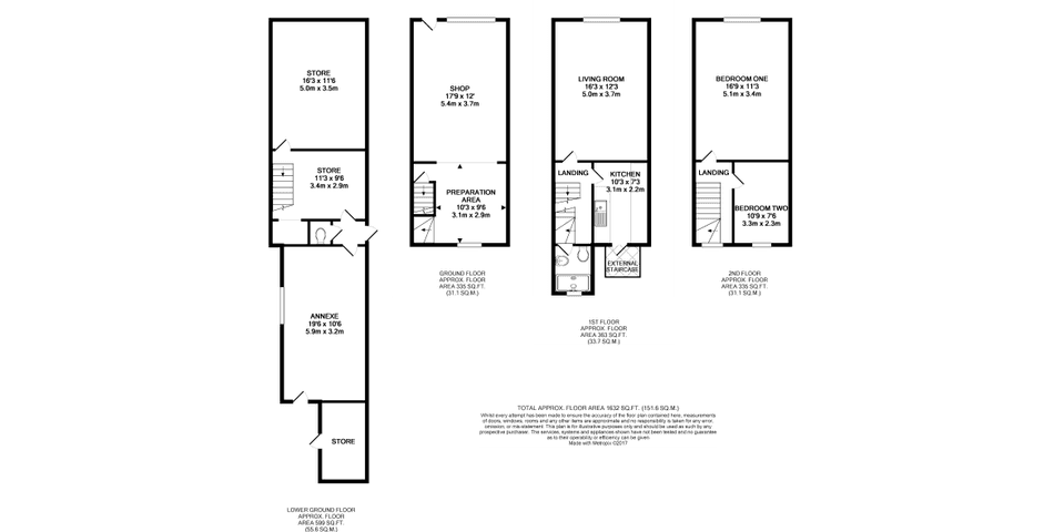
FOR SALE BY ONLINE AUCTION - End of Auction: 16th August 2023 at 12 noon. GUIDE PRICE OFFERS IN EXCESS OF £135,000 TO BID, WATCH THIS PROPERTY OR REGISTER YOUR INTEREST VISIT OUR BIDDING PLATFORM BY FOLLOWING THE LINK IN THE PHOTO CAROUSEL. The bidding platform is now open and bids on the property can be made online at any time between now and the end of the auction which is 12 noon on 16th August 2023. All of the legal documentation can also be viewed online. Set in the main shopping street in Bodmin is this four-storey building with parking for approximately three cars to the rear. The property has a shop (previously Break Thyme Delicatessen) with preparation area to the rear on street level and steps down into two lower ground floor store rooms. The shop is classed with A5 Restaurants and cafés use - for the sale of food and drink for consumption on the premises and has had a full ventilation system installed. The first and second floor comprises two-bedroom owners’ accommodation which can be accessed either internally or from a rear external staircase. There is a kitchen and good-sized living room with wood burner. One single bedroom and one large double bedroom can be found on the second floor. At the rear, there is a single storey annexe which has an open plan lounge/kitchen and bedroom with a separate shower room. The annexe is being sold with a tenant in situ who is paying £520 per month (correct as of August 2023). There is a further attached wooden store and parking for approximately three cars. Traditional Online Auction Information Please note: this property is for sale by traditional online auction. This means that exchange will occur when the online timer reaches zero (provided the seller's reserve price has been met or exceeded). The winning buyer will be legally obliged to purchase the property at this price. Pricing Information The Guide Price amount specified is an indication of each seller's minimum expectation. It is not necessarily the amount at which the property will sell. Each property will be offered subject to a Reserve (a figure below which the property will not be sold) which we expect will be set no more than 10% above the Guide Price amount. Webbers and Bamboo Auctions shall not be liable for any inaccuracies in the fees stated on this description page, in the bidding confirmation pop up or in the particulars. Buyers should check the contents of the legal pack and special conditions for accurate information on fees. Where there is a conflict between the fees stated in the particulars, the bid information box or the bidding confirmation pop up and the contents of the legal pack, the contents of the legal pack shall prevail. Stamp Duty Land Tax or Land and Buildings Transaction Tax may also apply in some circumstances. Buyers Premium & Other Charges The winning buyer is charged a sum of £5,000. From this a buyers fee of £3,600 (including VAT) is retained by Webbers/Bamboo Auctions as a contribution towards online platform costs and £1,400 is payable towards the purchase price. On completion the Buyer will pay the sum of £365.91 (including vat) to the Seller’s solicitors in reimbursement of search fees. SELLER’S SOLICITOR Ibrahim Sal Sal & Co Solicitors 191 Angel Place Fore Street London N18 2UD Tel: 020 8807 5888 Email: [email protected]
FOR SALE BY ONLINE AUCTION - End of Auction: 16th August 2023 at 12 noon. GUIDE PRICE OFFERS IN EXCESS OF £135,000. TO BID, WATCH THIS PROPERTY OR REGISTER YOUR INTEREST VISIT OUR BIDDING PLATFORM BY FOLLOWING THE LINK IN THE PHOTO CAROUSEL. The bidding platform is now open and bids on the property can be made online at any time between now and the end of the auction which is 12 noon on 16th August 2023. All of the legal documentation can also be viewed online. Set in the main shopping street in Bodmin is this four-storey building with parking for approximately three cars to the rear.
FOR SALE BY ONLINE AUCTION - End of Auction: 16th August 2023 at 12 noon. GUIDE PRICE OFFERS IN EXCESS OF £135,000 TO BID, WATCH THIS PROPERTY OR REGISTER YOUR INTEREST VISIT OUR BIDDING PLATFORM BY FOLLOWING THE LINK IN THE PHOTO CAROUSEL. The bidding platform is now open and bids on the property can be made online at any time between now and the end of the auction which is 12 noon on 16th August 2023. All of the legal documentation can also be viewed online. Set in the main shopping street in Bodmin is this four-storey building with parking for approximately three cars to the rear. The property has a shop (previously Break Thyme Delicatessen) with preparation area to the rear on street level and steps down into two lower ground floor store rooms. The shop is classed with A5 Restaurants and cafés use - for the sale of food and drink for consumption on the premises and has had a full ventilation system installed. The first and second floor comprises two-bedroom owners’ accommodation which can be accessed either internally or from a rear external staircase. There is a kitchen and good-sized living room with wood burner. One single bedroom and one large double bedroom can be found on the second floor. At the rear, there is a single storey annexe which has an open plan lounge/kitchen and bedroom with a separate shower room. The annexe is being sold with a tenant in situ who is paying £520 per month (correct as of August 2023). There is a further attached wooden store and parking for approximately three cars. Traditional Online Auction Information Please note: this property is for sale by traditional online auction. This means that exchange will occur when the online timer reaches zero (provided the seller's reserve price has been met or exceeded). The winning buyer will be legally obliged to purchase the property at this price. Pricing Information The Guide Price amount specified is an indication of each seller's minimum expectation. It is not necessarily the amount at which the property will sell. Each property will be offered subject to a Reserve (a figure below which the property will not be sold) which we expect will be set no more than 10% above the Guide Price amount. Webbers and Bamboo Auctions shall not be liable for any inaccuracies in the fees stated on this description page, in the bidding confirmation pop up or in the particulars. Buyers should check the contents of the legal pack and special conditions for accurate information on fees. Where there is a conflict between the fees stated in the particulars, the bid information box or the bidding confirmation pop up and the contents of the legal pack, the contents of the legal pack shall prevail. Stamp Duty Land Tax or Land and Buildings Transaction Tax may also apply in some circumstances. Buyers Premium & Other Charges The winning buyer is charged a sum of £5,000. From this a buyers fee of £3,600 (including VAT) is retained by Webbers/Bamboo Auctions as a contribution towards online platform costs and £1,400 is payable towards the purchase price. On completion the Buyer will pay the sum of £365.91 (including vat) to the Seller’s solicitors in reimbursement of search fees. SELLER’S SOLICITOR Ibrahim Sal Sal & Co Solicitors 191 Angel Place Fore Street London N18 2UD Tel: 020 8807 5888 Email: [email protected]
Summary
- Auction end
- 16th Aug at 11:00
- Property type
- Commercial
- Tenure
- Freehold
- Bedrooms
- 2
- Bathrooms
- 1
- Council tax band
- A
Guide Price: *
£135,000
Fees apply
Buyer's fee:£3,600
Legal fee:£366
All fees include VAT at 20%
Holding Deposit: *£1,400
*Only charged if you are the successful buyer and goes towards the purchase price
Auction Type:
† Traditional
Sold for:
£140,000Bid history
5 bidsCThis is an automatic bid as the bidder has set a maximum bid for this lot
16/08/2023 10:50:01 - £140,000
I
16/08/2023 10:50:01 - £139,000
CThis is an automatic bid as the bidder has set a maximum bid for this lot
16/08/2023 10:45:21 - £137,000
See all 5 bids ▾
Summary
- Auction end
- 16th Aug at 11:00
- Property type
- Commercial
- Tenure
- Freehold
- Bedrooms
- 2
- Bathrooms
- 1
- Council tax band
- A
This property is being sold by:

Webbers - Bodmin
01208 73298
53 Fore Street, Bodmin, Cornwall, PL31 2JB
†Traditional auction
Exchange occurs at the end of the auction. This means that if the reserve is met or exceeded and the auction timer reaches zero, the successful bidder is legally obliged to pay the purchase price and the seller will be legally obliged to sell the property. To ensure that the successful bidder proceeds, the buyer is automatically charged a holding deposit, which is held in a secure client account, pursuant to the terms of a holding deposit agreement.
* Pricing Information
The Guide Price amount specified is an indication of each seller's minimum expectation. It is not necessarily the amount at which the property will sell. Each property will be offered subject to a Reserve (a figure below which the property will not be sold) which we expect will be set no more than 10% above the Guide Price amount.
Bamboo Proptech and Webbers Online Auction shall not be liable for any inaccuracies in the fees stated on this description page, in the bidding confirmation pop up or in the particulars. Buyers should check the contents of the legal pack and special conditions for accurate information on fees. Where there is a conflict between the fees stated in the particulars, the bid information box above or the bidding confirmation pop up and the contents of the legal pack, the contents of the legal pack shall prevail.
Stamp Duty Land Tax or Land and Buildings Transaction Tax may also apply in some circumstances.
Refreshing the Page
To make sure that you are seeing the latest information for the property, we recommend you refresh the page. This ensures you're seeing live information and not stored (cached) data. If the page disconnects from the Internet, refreshing the page will show the latest information.
Disclaimer
All information relating to this property, including descriptions, pictures and other related information has been provided by Webbers Online Auction. All legal documents in relation to this property have been provided by the Vendor's solicitor. Neither Bamboo Proptech or any individual in employment with Bamboo Proptech makes any warranty as to the accuracy or completeness of any of the property information.
These particulars do not form part of any contract or offer. Buyers should not rely on them as statements of representation and should check that the information is correct by inspection or otherwise. Where there is a conflict between the contents of the legal documents and these particulars, the information contained in the legal documents shall prevail.
Pursuant to the Auctioneer Act 1845, this auction is being conducted by the auctioneer stated above. All participants in this online auction shall note that both the Auctions (Bidding Agreements) Act 1927 and 1969 shall apply.
Where stated in the bid box above, you agree that Bamboo may pre-authorise your card for the amount of the Buyer's fee and Deposit. You will only be charged if you are the winning buyer. We will release the pre-authorisation at the end of the auction. You card issuer may take up to 10 working days for this amount to be available to you in your account.
